Mon titre
︎
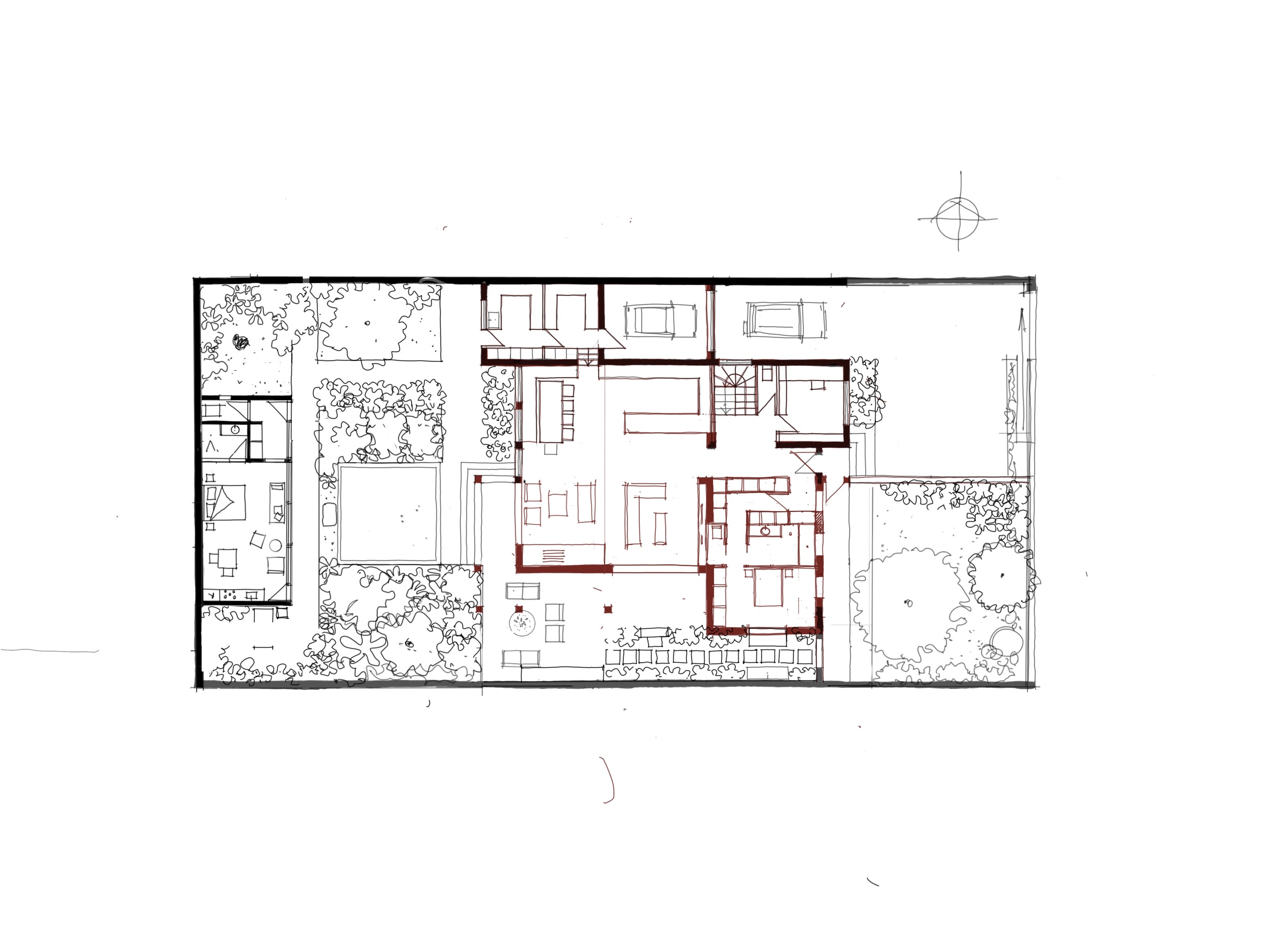
Macdonald Architectes.
Info
10
FINCA
2023, Anglet
,
particulier
,
rénovation,
réalisé